Посмотреть на карте

Офис Whitewill:

Пресненская набережная, 6с2, Башня «Империя», 3-й подъезд, офис 4315
Smolensky De Luxe
Готовый 7-этажный клубный дом у Смоленской набережной
от 92 м²
площадь апартаментов 
от 120 000 000 ₽
цена апартаментов
Презентация клубного дома
Внутри — расположение дома, архитектура и инфраструктура
PDF 11.73 MB.
Время скачивания файла - 5 секунд
Презентация клубного дома
Внутри — расположение дома, архитектура и инфраструктура
← Можно пролистнуть →

О доме «Смоленский Делюкс»

Рассказывают брокеры
Клубный дом в центре Москвы
Клубный дом Smolensky De Luxe расположен в самом центре Москвы между Смоленской набережной и Садовым кольцом. Рядом с домом удобный выезд на Кутузовский проспект, до ТТК можно добраться за 8 минут. В 5 минутах прогулочным шагом Арбат и Новый Арбат. Ближайшая станция метро «Смоленская» в 5 минутах от дома.
Expert 1
Степан
Партёр компании
Приватная территория
Территория клубного дома огорожена и благоустроена — расставлены лавочки, высажены газон и цветники в клумбах. Для удобства жителей в доме круглосуточно работает служба консьержей, которая поможет решить бытовые вопросы: встретить гостей или курьера с посылкой, заказать столик в ресторане, забрать одежду из химчистки.
Expert 2
Алексей
Партнёр компании
Уникальные варианты апартаментов
В клубном доме представлены апартаменты с зимними садами и балконными галереями. На верхнем этаже расположены пентхаусы с просторными террасами и панорамными видами на город. Есть варианты без отделки и с готовой отделкой по проекту мастерской Бориса Уборевича-Боровского. Интерьеры, сочетающие оттенки монохромной гаммы, лаконичные формы и чистые линии.
Expert 3
Наталья
Партнёр компании
Безопасность и техническое оснащение
В клубном доме установлены системы: приточно-вытяжной вентиляции с централизованным подогревом или охлаждением приточного воздуха, спринклерного автоматического пожаротушения и кондиционирование. Все системы работаю в автоматическом режиме под контролем единой диспетчерской. Для комфортного передвижения установлены премиальные лифты компании Thyssen.
Expert 4
Ирина
Партнёр компании, тимлидер направления вторичной недвижимости

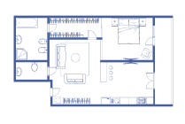
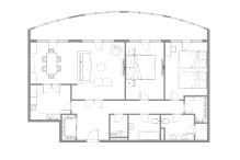
Планировки и цены апартаментов 

Вы можете выбрать, забронировать и купить апартаменты в клубном доме Smolensky De Luxe в нашем разделе с планировками и ценами.
от 210 000 000 ₽
от 1 500 000 ₽ за м2
от 140 м2
Это типовая планировка, а не квартира. Альбом со всеми планировками можно скачать на сайте. Посмотреть все лоты можно переключив фильтр справа.
от 164 560 000 ₽
от 1 180 000 ₽ за м2
от 140 м2
Это типовая планировка, а не квартира. Альбом со всеми планировками можно скачать на сайте. Посмотреть все лоты можно переключив фильтр справа.
С Студия
1 спальня
2 спальни
3 спальни
4+ спальни
Другие варианты планировок:
1
1
Стоимость
$ £
Стоимость
$ £
Площадь
м²
Площадь
м²
С
Добавить к выбору
Студия
1
Добавить к выбору
спальня
2
Добавить к выбору
спальни
3
Добавить к выбору
спальни
4+
Добавить к выбору
спальни
Сначала дешевле
Дополнительные опции
plan-lot-179463
Апартаменты с 1 спальней
99 000 000 ₽ 0 ₽ в месяц
1 спальня
С отделкой
82 м²
Лот #333063
interior-lot-171815
interior-lot-171815
interior-lot-171815
interior-lot-171815
interior-lot-171815
interior-lot-171815
interior-lot-171815
interior-lot-171815
interior-lot-171815
interior-lot-171815
interior-lot-171815
interior-lot-171815
Апартаменты с 2 спальнями
108 000 000 ₽ 0 ₽ в месяц
2 спальни
С отделкой
111 м²
Апартаменты с 2 спальнями общей площадью 111 м² в комплексе Smolensky De Luxe. Выполнен дизайнерский ремонт в стиле лофт с элементами минимализма, основа интерьера — аутентичная кирпичная кладка, выкрашенная в белый и тёмно-серый цвета. На полу выложена графичная чёрно-белая плитка. Установлена система индивидуального кондиционирования. Продуманы различные сценарии освещения. Планировка включает гостиную с обеденной зоной, кухню-столовую, спальню с биокамином и выходом на балкон, санузел, постирочную и холл. Панорамные окна в пол ориентированы на две стороны света. Виды на церковь Святителя Николая на Щепах.
Лот #324863
Рисуем планировку,
но на просмотр в офис продаж можно пойти уже сейчас. Оставьте заявку и мы всё устроим.
Апартаменты с 1 спальней
117 000 000 ₽ 0 ₽ в месяц
1 спальня
Без отделки
100 м²
Лот #324656
plan-lot-171801
Апартаменты с 1 спальней
118 560 000 ₽ 0 ₽ в месяц
1 спальня
С отделкой
91 м²
Лот #319794
plan-lot-171813
Апартаменты с 2 спальнями
120 000 000 ₽ 0 ₽ в месяц
2 спальни
С отделкой
107 м²
Лот #324655
interior-lot-171803
interior-lot-171803
interior-lot-171803
interior-lot-171803
interior-lot-171803
interior-lot-171803
interior-lot-171803
interior-lot-171803
interior-lot-171803
interior-lot-171803
interior-lot-171803
interior-lot-171803
Апартаменты с 2 спальнями
125 000 000 ₽ 0 ₽ в месяц
2 спальни
С отделкой
92 м²
Апартаменты с двумя спальнями общей площадью 92 м² в комплексе Smolensky De Luxe. Выполнен дизайнерский ремонт в классическом стиле. Интерьер выдержан в цветах благородного дерева с мягкими акцентами бирюзы. В отделке использована натуральная древесина и камень. Полы выложены мрамором и тёмным паркетом. Кессонные потолки с резными узорами и золотистыми подвесными люстрами с декором из стекла. Планировка: кухня-гостиная, две спальни со своими ванными комнатами и встроенными гардеробными шкафами, гостевой санузел, балкон и холл. Установлена мягкая мебель, в гостиной большой угловой диван, обеденный стол на четыре персоны. Кухня оборудована встроенной бытовой техникой. С балкона открывается вид на Никольскую церковь в сторону Садового кольца и Нового Арбата. В подземном паркинге закреплено одно машино-место.
Лот #310655
Продайте свою квартиру в ЖК Smolensky De Luxe
Оставьте заявку, и эксперт проекта свяжется с вами для добавления вашей квартиры на сайт
Продать квартиру
Наталья
plan
plan2
Наталья, Партнёр компании
light
light
light
light
lamp

Презентация клубного дома

Расположение, инфраструктура и архитектура клубного дома «Смоленский Делюкс» в нашей презентации.
Каталог
Хотите арендовать апартаменты в клубном доме Smolensky De Luxe?
Оставьте заявку, и эксперт проекта свяжется с вами и подберёт подходящий вариант
Оставить заявку
аренда апартаментов

Расположение клубного дома

Smolensky De Luxe расположен по адресу: Москва, 1-й Смоленский переулок, дом 21. Запишитесь на экскурсию по телефону или на сайте.
Смоленская, 5 минут
ТТК – 7 минут
Садовое кольцо – 2 минуты

Места поблизости

  Московский Кремль
10 минут
Московский Кремль
  Дом Правительства РФ
13 минут
Дом Правительства РФ
  Дом культуры «ГЭС-2»
7 минут
Дом культуры «ГЭС-2»
  Деловой центр «Москва-Сити»
7 минут
Деловой центр «Москва-Сити»
  Стадион «Лужники»
13 минут
Стадион «Лужники»
  Парк им. Горького
7 минут
Парк им. Горького
  Большой театр
9 минут
Большой театр
  Кинотеатр Художественный
22 минуты
Кинотеатр Художественный

Застройщик проекта Smolensky De Luxe

«Донстрой» — одна из старейших и ведущих девелоперских компаний столицы, в портфеле «Донстроя» более 30 реализованных, строящихся и разрабатываемых жилых проектов общей площадью более 3 миллионов метров.
Алые Паруса
Дом в Сокольниках
Кленовый DOM
Жизнь на Плющихе
Филипповский
Триумф Палас
Седьмое небо
Новопесковский
Остров
Суббота
Дом на Беговой
Сердце столицы
Barrin House
Grand Deluxe на Плющихе
Дом на Мосфильмовской
Freedom
Оливковый дом
Посмотреть еще 13 проектов

Доступная ипотека

Подайте заявку на ипотеку и получите решение сразу из нескольких банков-партнёров.
Стоимость недвижимости
Первоначальный взнос
Срок кредитования
Лучшее предложение на основе вашего запроса:
Процентная ставка
от 21,9 %
Ежемесячный платёж
от 135 845
Банки партнёры:
Газпромбанк
ВТБ
Сбербанк
Альфа-Банк
Дистанционно одобрим ипотеку
Ставка от 21,9%
Решение за 72 часа
Ответ из нескольких банков
Решение в трудных ситуациях
Одобрить ипотеку
andrew
Анастасия
Ипотечный брокер

Вопросы и ответы

Где расположен ЖК Smolensky De Luxe?

Жилой комплекс расположен по адресу: 1-й Смоленский переулок, 21, в районе Арбат Центрального административного округа Москвы. В пешей доступности находятся улица Новый Арбат и Смоленская набережная. Ближайшая станция метро — Смоленская. Локация относится к престижной части центра Москвы с развитой инфраструктурой и высоким инвестиционным потенциалом.

Кто застройщик клубного дома?

Девелопером проекта выступает Донстрой — один из ведущих застройщиков премиальной и элитной недвижимости в Москве. Компания известна реализацией масштабных жилых комплексов бизнес- и премиум-класса.

Какие апартаменты представлены в комплексе?

В ЖК доступны элитные апартаменты различных форматов: от просторных 2-комнатных до многокомнатных резиденций и пентхаусов. Предлагаются квартиры с панорамными окнами, видами на центр Москвы, высокими потолками и современными планировками. Возможна покупка квартиры с отделкой или без отделки (white box / свободная планировка — в зависимости от лота).

Можно ли купить пентхаус в «Смоленский Делюкс»?

Да, в комплексе представлены пентхаусы с просторными террасами, панорамным остеклением и видами на исторический центр Москвы. Пентхаусы в районе Арбат традиционно относятся к сегменту наиболее ликвидной элитной недвижимости.

Какая инфраструктура предусмотрена в ЖК?

В комплексе реализована концепция клубного дома с закрытой охраняемой территорией, подземным паркингом, круглосуточной охраной и системой видеонаблюдения. Предусмотрены современные инженерные системы, зоны лобби и сервис уровня premium. В шаговой доступности — рестораны, бутики, деловые центры и культурные объекты Арбата.

Есть ли подземный паркинг?

Да, в ЖК предусмотрен подземный паркинг для резидентов. Наличие машиноместа в центре Москвы является важным преимуществом при покупке элитной квартиры.

Какие преимущества района Арбат для покупки квартиры?

Район Арбат — один из самых престижных и исторических районов Москвы. Покупка квартиры здесь обеспечивает удобную транспортную доступность, близость к деловому центру, развитую социальную и культурную инфраструктуру, а также высокую инвестиционную привлекательность недвижимости.

Какая транспортная доступность у Smolensky De Luxe?

ЖК расположен вблизи Садового кольца и основных магистралей центра Москвы. Удобный выезд на Новый Арбат и Смоленскую набережную обеспечивает быстрое сообщение с деловыми районами столицы. В пешей доступности — метро Смоленская, что повышает ликвидность и комфорт проживания.

Можно ли купить квартиру в ипотеку?

Возможность покупки квартиры в ипотеку зависит от текущих условий банков-партнёров и статуса конкретного лота. Для получения актуальной информации рекомендуется уточнить условия продажи, стоимость квартир и доступные программы финансирования.
Запишитесь на просмотр
Укажите свои контакты и менеджер свяжется с вами, чтобы уточнить удобное время просмотра
Записаться на сайте Записаться в WhatsApp Записаться в Telegram Записаться в Max